Situación
Calle Amapolas 438B, Marbella Málaga
Superficie Parcela
437,50 m2
Estado
Licencia de obra concedida
Año
2024
El proyecto consiste en una vivienda unifamiliar aislada que destaca del resto de viviendas de su entorno por su configuración arquitectónica, con espacios a doble altura y una gran superficie acristalada en fachada.
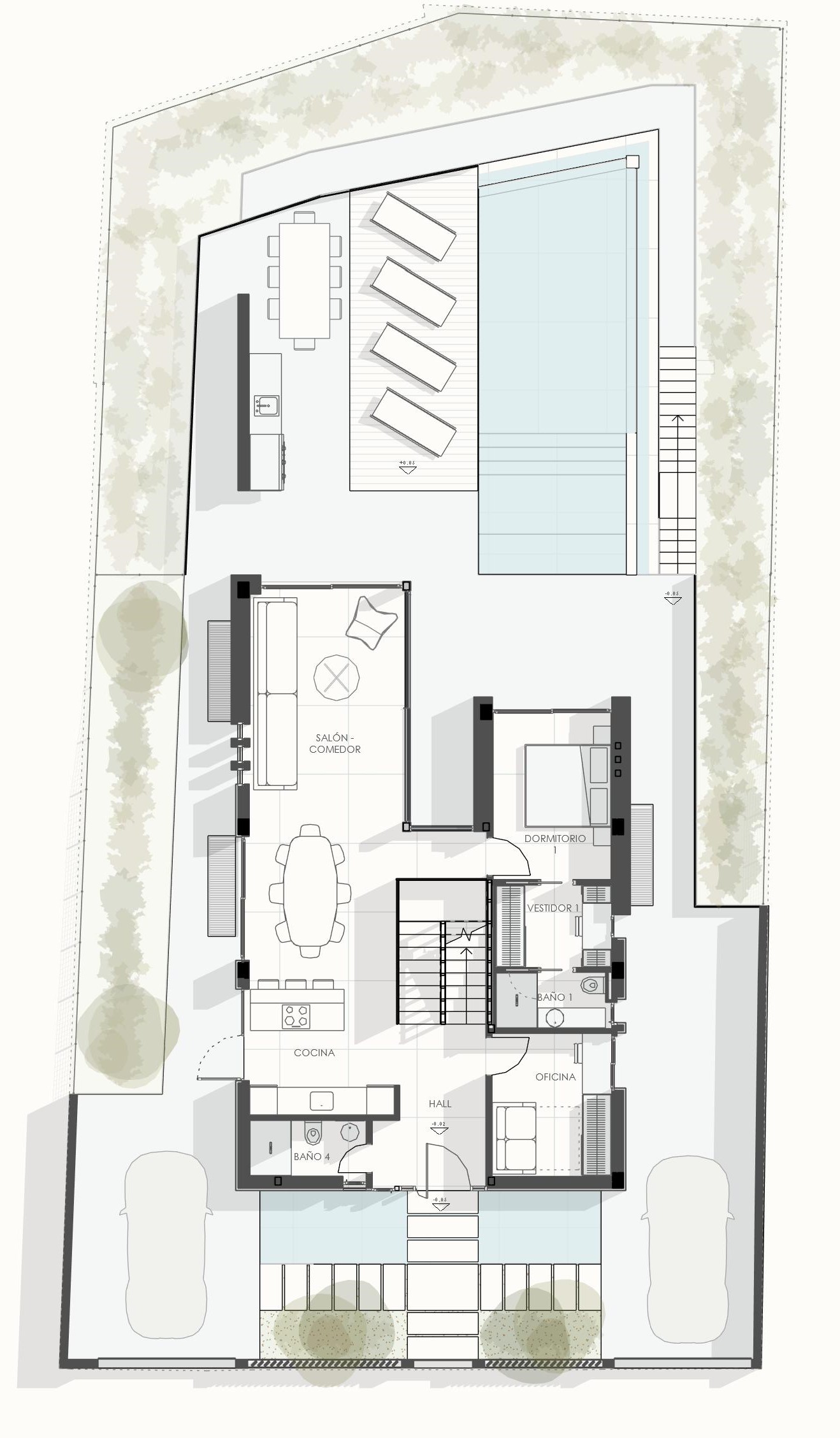
La planta tiene forma de U con uno de los extremos sobresaliendo sobre el otro y ubicando en el centro la escalera como elemento organizador del espacio, tanto en planta como en altura.
En el lado izquierdo de la planta baja se ubica la zona de día, con cocina, comedor y salón a doble altura, mientras que en el lado derecho se ubican un dormitorio y una oficina con sendos baños.
En la planta primera, se dispone a cada lado de la escalera de un dormitorio master con vestidor y cuarto de baño en un espacio diáfano. En la planta sótano se ubica una zona de estar, con cine, gimnasio, cuarto lavadero y de instalaciones y trastero.


